Design-Build Architecture Company in Miami, Florida

403 OCEAN LANE

578A84F0-0767-4DDE-9C53-5B53C5EF6A3A+2.jpeg

Location: 170 Ocean Lane Dr #403 Key Biscayne, FL 33149
Year Completed: 2022
Work Done: Architectural Design


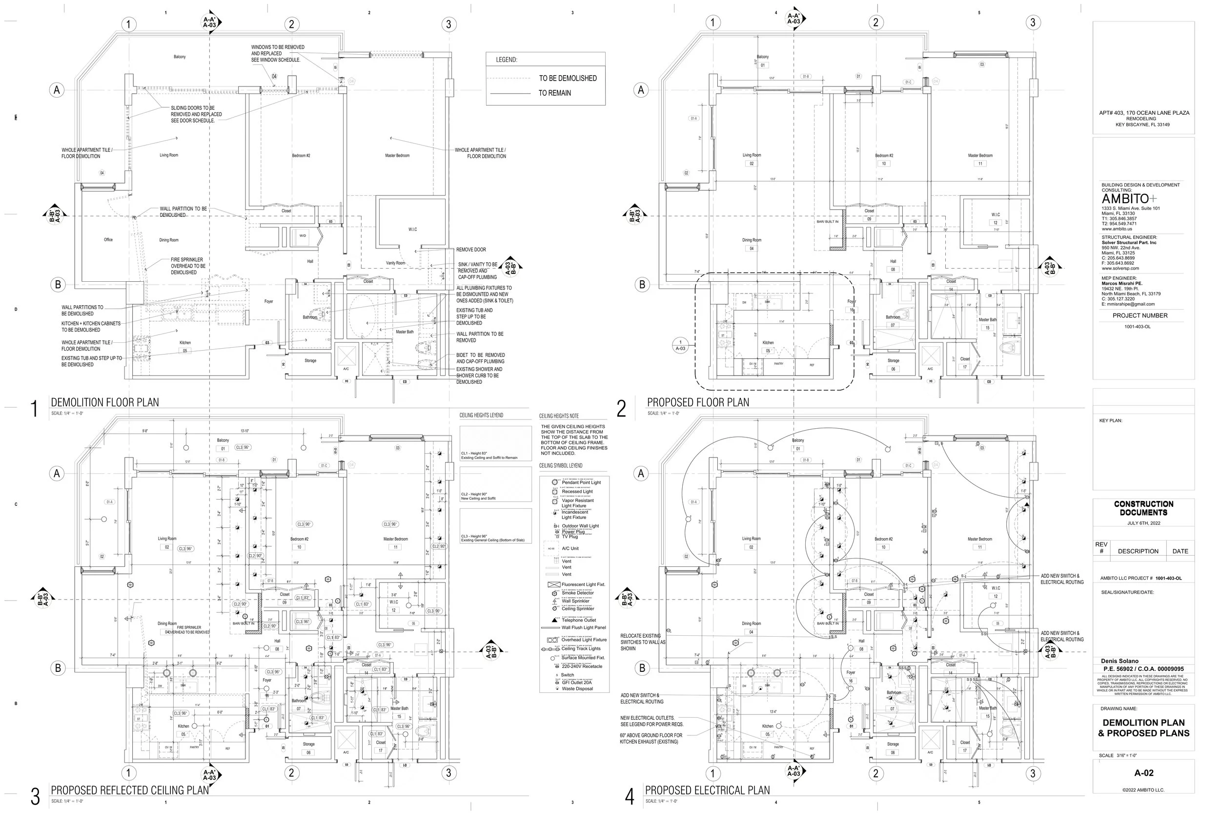
Unit 403 in building 170 Ocean Lane, is a complete interior remodeling to include new kitchen and reset plumbing fixtures in all existing bathrooms (2). This new apartment will have new floors, new impact sliding doors and windows, and flooring in balconies. The kitchen will be completely open to the social space and remodeled in finishes and appliances. The apartment will also have new ceiling soffits throughout the whole apartment with recessed lighting fixtures as well as in the bedrooms. Each bathroom will be remodeled completely.


Final Product

Existing Pictures


Drawings


Team

Principal
Yoel Flores

Contractor
CCS Contractors Services

Designer
Yoel Flores & Maria Flores

Visualizer, 3D Modeling
Maria Flores

Mechanical, Electrical, Plumbing
Marcos Misrahi