 
            PANORAMIC VIEWS OF THE BISCAYNE BAY
Details
Location: 3229 NE 169th St, North Miami Beach, FL 33160
Year Completed: 2025
A/C Area: 6,058 SF
Gross Area: 10,941 SF
Beds: 4
Baths: 3 full, 2 half
Acres: 9,505 SF / +/- 0.22 Acres
Lot Type: Interior
Features
Style: Modern
Finishes: Wood, Stucco, Metal
Special Room(s): Roof Deck, Gym 
Exterior Spaces: BBQ Kitchen, Pool/Jacuzzi
Views: Waterfront
About 3229 NE 169th St,
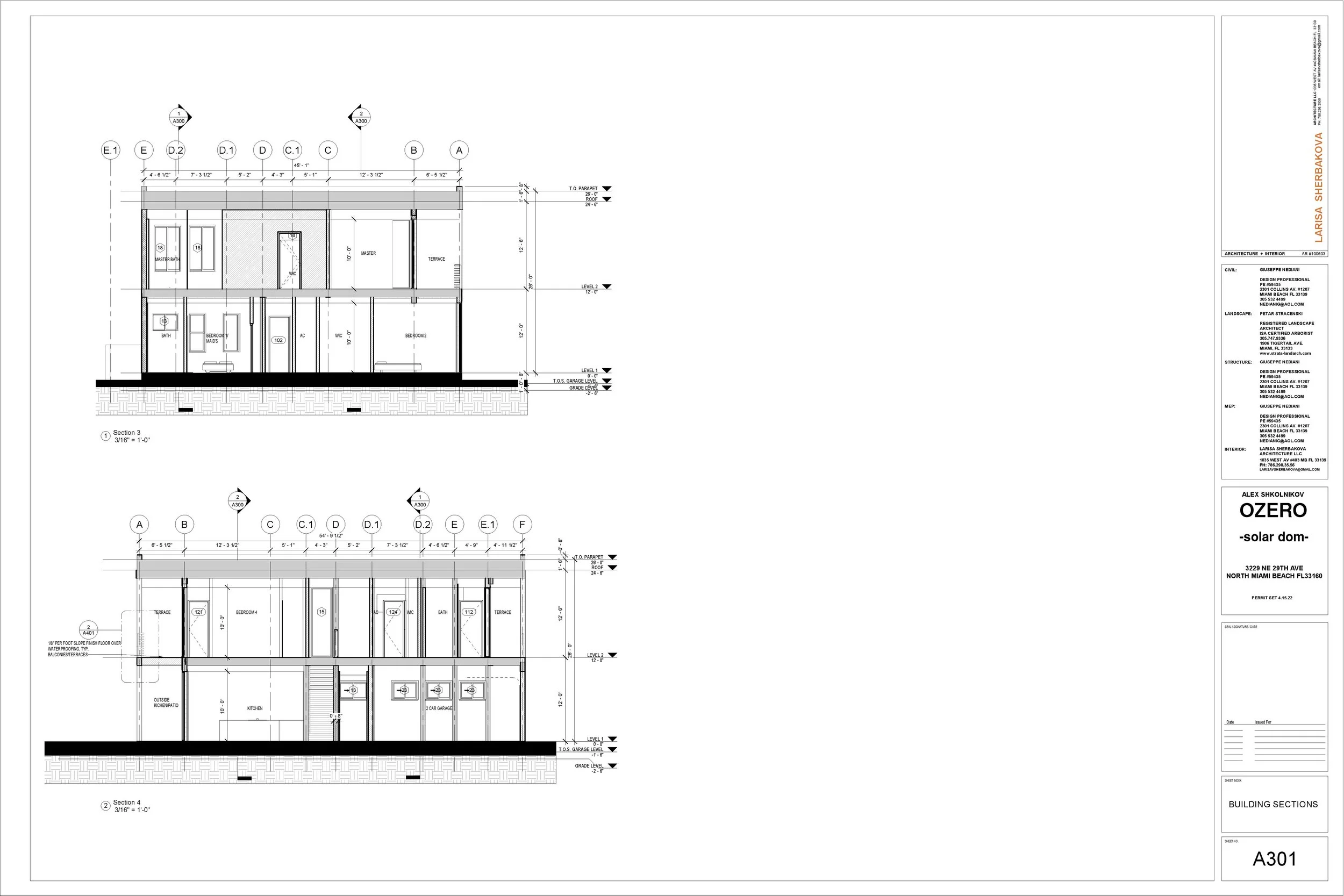
The architectural project was designed by our endearing friend Larisa Sherbakova, AIA, NCARB Architect. The project revolves around designing a modern residence situated on a scenic waterfront lot. The primary focus of the design is the creation of a curvilinear form for the exterior structure, culminating in a stunning architectural feature—an aquatic oculus—that offers breathtaking views of the surrounding water landscape. This unique and innovative approach aims to blend the beauty of nature with contemporary living, providing residents with an unparalleled connection to the water and the environment.
- The exterior of the modern residence embraces organic, curvilinear lines that harmonize with the natural surroundings. The structure blends seamlessly with the landscape, creating a fluid transition between the residence and the waterfront. The architects have utilized materials such as glass, steel, and sustainable wood to enhance the aesthetic appeal and promote a sense of eco-friendliness. 
- The interior design seamlessly integrates with the exterior's curvilinear theme. An open-plan layout with ample floor-to-ceiling glass windows and sliding doors maximizes the water views and provides a sense of continuity with the natural surroundings. The main living areas, such as the living room, dining room, and kitchen, are strategically positioned to benefit from the breathtaking vistas. The fluidity of the design blurs the boundaries between indoor and outdoor spaces, allowing residents to feel connected with the water and nature from every angle. 
- To complement the waterfront location, the landscaping design highlights native plants, creating a lush and environmentally friendly outdoor space. Patios, decks, and terraces surround the residence, offering multiple opportunities for residents to engage with the waterfront and immerse themselves in the tranquility of the surroundings. A boardwalk leads directly from the residence to the water, allowing residents to enjoy various water activities. 
Location: 3229 NE 169th St, North Miami Beach, FL 33160
Year Completed: Under Construction
Work Done: Construction
The architectural project was designed by our endearing friend Larisa Sherbakova, AIA, NCARB Architect. The project revolves around designing a modern residence situated on a scenic waterfront lot. The primary focus of the design is the creation of a curvilinear form for the exterior structure, culminating in a stunning architectural feature—an aquatic oculus—that offers breathtaking views of the surrounding water landscape. This unique and innovative approach aims to blend the beauty of nature with contemporary living, providing residents with an unparalleled connection to the water and the environment.
- The exterior of the modern residence embraces organic, curvilinear lines that harmonize with the natural surroundings. The structure blends seamlessly with the landscape, creating a fluid transition between the residence and the waterfront. The architects have utilized materials such as glass, steel, and sustainable wood to enhance the aesthetic appeal and promote a sense of eco-friendliness. 
- The interior design seamlessly integrates with the exterior's curvilinear theme. An open-plan layout with ample floor-to-ceiling glass windows and sliding doors maximizes the water views and provides a sense of continuity with the natural surroundings. The main living areas, such as the living room, dining room, and kitchen, are strategically positioned to benefit from the breathtaking vistas. The fluidity of the design blurs the boundaries between indoor and outdoor spaces, allowing residents to feel connected with the water and nature from every angle. 
- To complement the waterfront location, the landscaping design highlights native plants, creating a lush and environmentally friendly outdoor space. Patios, decks, and terraces surround the residence, offering multiple opportunities for residents to engage with the waterfront and immerse themselves in the tranquility of the surroundings. A boardwalk leads directly from the residence to the water, allowing residents to enjoy various water activities. 
 AMBITO LLC will be doing the construction of the project within the next 14 months.
Renderings
Drawings
Team
Principal
Yoel Flores
Designer
Larisa Sherbakova
Visualizer, 3D Modeling
Indrit Alushani & Larisa Sherbakova
Mechanical, Electrical, Plumbing
Giuseppe Nediani
Landscape Design
Petar Stracenski
Structural Design
Giuseppe Nediani
Contractor
Yoel Flores / AMBITO LLC
 
          
        
       
                 
                 
                 
                 
                 
                 
                 
                 
                 
                 
                 
                 
                 
                 
                 
                 
                 
                 
                