Design-Build Architecture Company in Miami, Florida

3118 Elizabeth St

AMBITO LLC 3118 ELIZABETH  (13).jpg

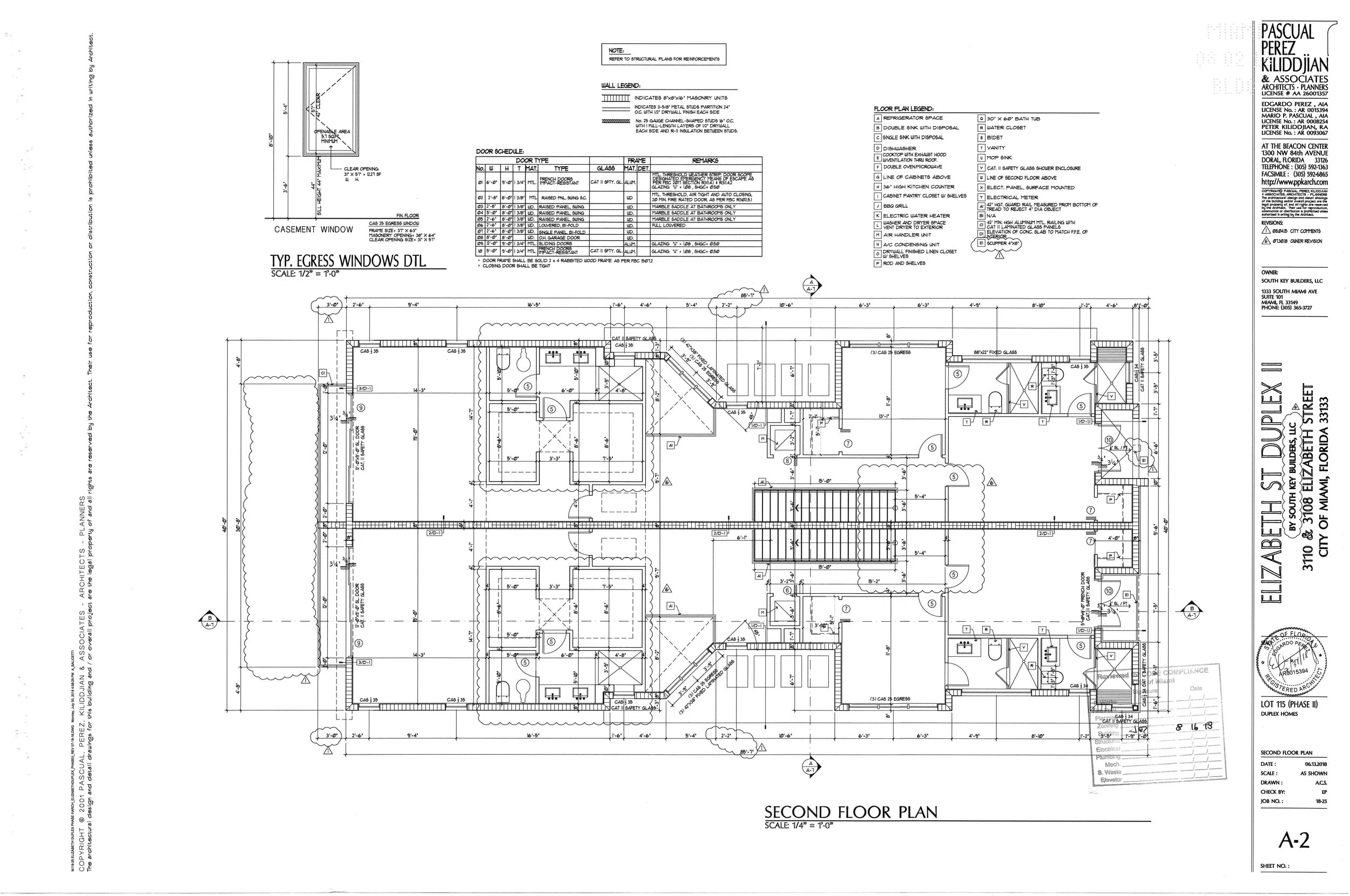
Location: 3118 Elizabeth St #3118 and #3110, Miami, FL 33133
Year Completed: In Progress
Work Done: Shell Construction


This project was designed by another architect and Ambito LLC, along with CCS Construction Services under Colonial Builders built the whole shell structural portion of the house. Ambito LLC did a couple of updates to the bedrooms and bathrooms before construction.

3118 and 3110 Elizabeth St. is a two-story duplex that has around 2,600 sq.ft. individually (each), with one car parking space outside (carport) and another inside. Each duplex has 5 bedrooms with a pool deck and pool in the rear terrace. Each duplex has a guest bedroom on the ground floor with a completely individual access to the exterior. There is a big space for kitchen, living room, and entry porch. The access to the entry to each duplex would be to the rear side. On the ground floor, there are three bedrooms plus a master bedroom with a big closet (his and hers).


Final Product


Construction


Drawings


Team

Principal
Yoel Flores

Designer
Pascual Perez Kiliddjian & Associates

Visualizer, 3D Modeling
Daniel Romero

Mechanical, Electrical, Plumbing
Marcos Misrahi

Shell Construction
Ambito LLC
Colonial Builders

Contractor
CCS Consulting Services